47 m2 műhely/raktár/iroda eladó újépítésű társasházban

6205 Nyomtatás Ajánlás Facebook

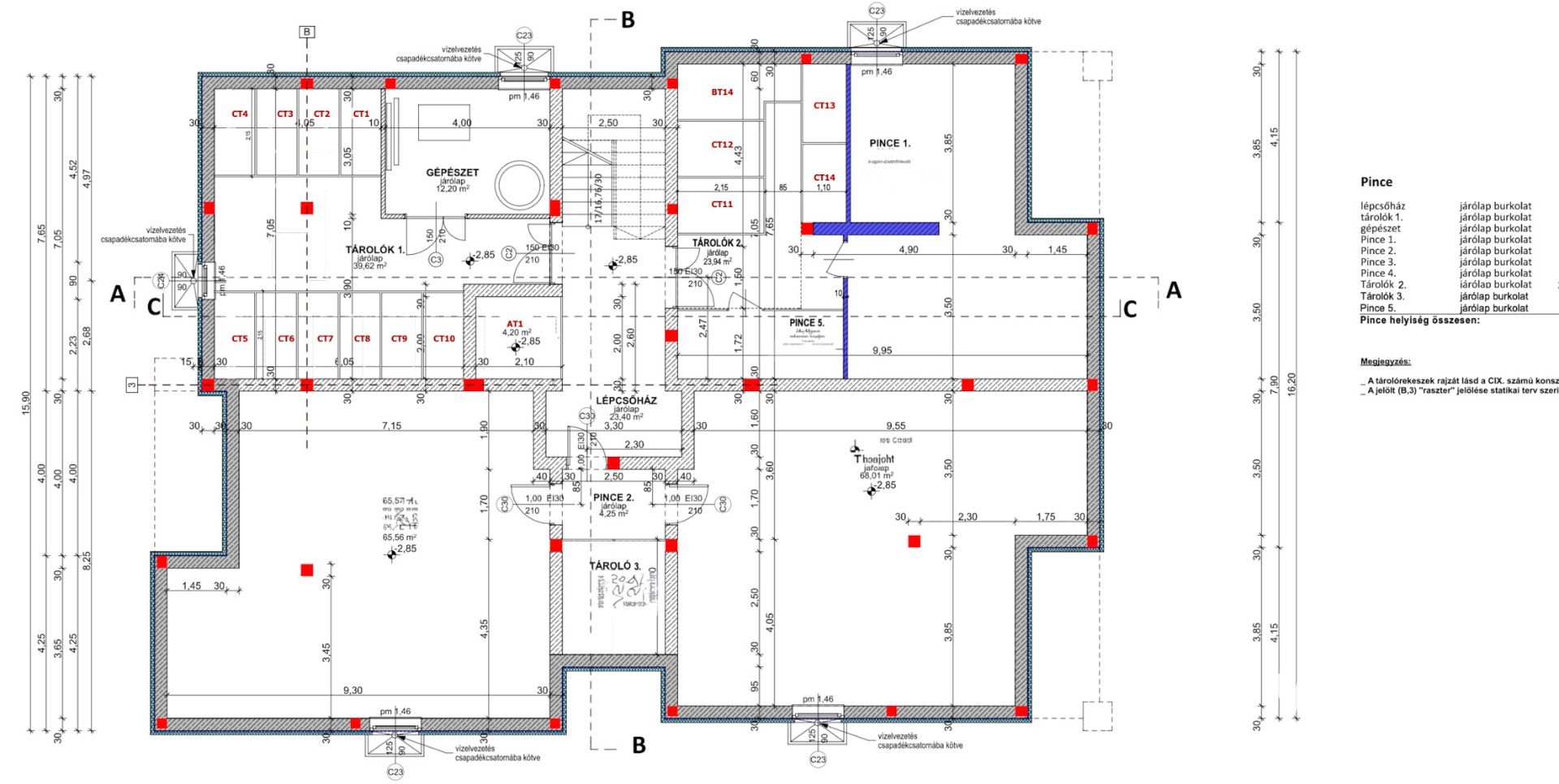
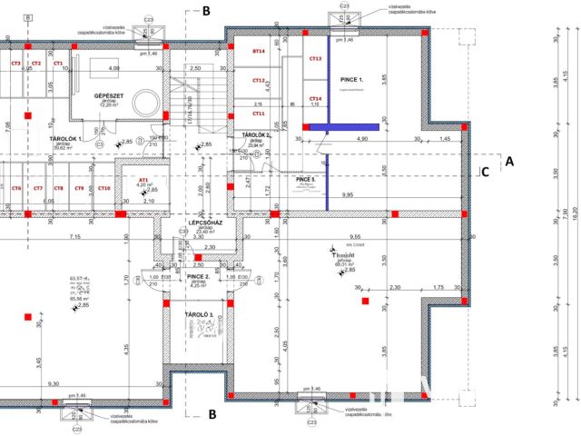
Eladó egy kiváló állapotú raktár Szombathely Derkovits lakótelep városrészében!

A 47 m² alapterületnek köszönhetően rengeteg lehetőség nyílik az ingatlan hasznosítására. Lehet műhely, iroda vagy raktár/tároló. A helyiség ablakkal rendelkezik, jelenleg építési anyagok tárolására használja a tulajdonos, de korábban irodaként is funkcionált.

A társasház liftes, újépítésű, 2021-ben került átadásra. A pinceszintnek köszönhetően a hőmérséklet állandónak mondható.
Közös költsége minimális.

Tulajdoni lapja rendezett, külön helyrajzi számon van nyilvántartva mindegyik helyiség "pince" besorolással.

A mellékelt alaprajzon látható, hogy 4 db pince besorolású helyiség helyezkedik el egymás mellett. Egyben is megvásárolható.
A vételár nettóban értendő a 27% áfát nem tartalmazza!

- 1db 66 m2 alapterületű
- 1db 68 m2 alapterületű
- 1db 47 m2 alapterületű
- 1 db 4 m2 alapterületű

További információkat, külső képeket telefonos azonosítás után tudok küldeni.

Gergics Róbert
PRÉMIUM

Gergics Róbert

Karrierigazgató
Budapest
+36 (20) 262 6304
Észrevétel a hirdetéssel kapcsolatban
Egy ingatlanos naplója